 
   
發布時間:2021-03-15 09:29:41
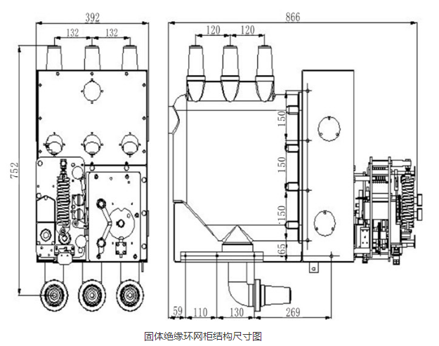
固體柜的機芯是由真空滅弧室、固體絕緣系統、三工位刀閘、操作機構等幾個比較重要的部分組成。其中,各個部分都有其自身的性能特點:
	 
 
1、真空滅弧室:
固體柜的真空滅弧室中主要元器件是真空斷路器,真空斷路器具有開斷短路電流能力,用于電路和電氣設備的過載和短路保護。因其觸頭開距小,燃弧時間短,觸頭一開斷故障電流時燒傷輕微,所需的操作能量小,動作快等特點,它同時還具有體積小,重量輕,維護工作量小,能防水、防爆,操作噪聲小的優點,是替代油斷路器和SF6斷路器的理想斷路器,廣泛用于電力、冶金、通訊等行業的高頻加熱等配電系統。斷路器用真空滅弧室是真空斷路器的關鍵部件,是真空斷路器的心臟,它基本上解決了斷路器的主要性能。
2、固體絕緣系統:
固體柜的固體絕緣系統采用APG工藝成型的固封極柱將真空滅弧室和上下出線座等載流導體封裝成一個整體。隔離開關安裝在固封極柱的腔體內,使得相間絕緣以固體絕緣方式為主絕緣方式。單相母線可擴展設計,實現功能單元無線擴展。
3、三工位刀閘:
所有開關柜配有三工位刀閘。三工位刀閘與主開關一同內置于固封極柱內。三相聯動,可操作實現工作/隔離/接地三個位置。與主開關采用了機械聯鎖,只有在主開關處處于分閘位置時,三工位刀閘才能動作,另外三工位機構工作和接地位置也能實現互鎖,當刀閘處于工作位置時,接地側孔被鎖住:當刀閘處于接地位置時工作側孔被鎖住。
4、操作機構:
固體柜的斷路器操作機構為彈簧操作機構,有著結構簡單、動作可靠、體積小巧、免維護等特點,合閘功大小可根據用戶要求上下調整,機構可以手動儲能、手動合閘、手動分閘,也可以電動儲能、電動分合閘,方便用戶操作。